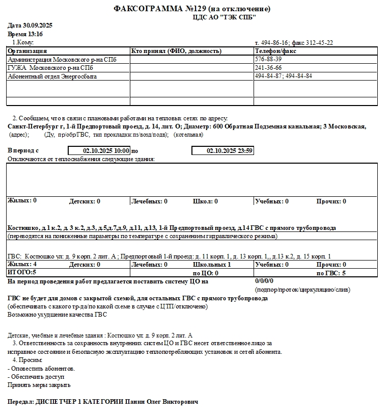
ЦДС АО "ТЭК СПБ" информирует о плановых работах на тепловых сетях по адресу: 1-й Предпортовый проезд, д. 14, лит. О
В период с 02.10.2025 10:00 до 02.10.2025 23:59 переводятся на пониженные параметры по температуре с сохранением гидравлического режима следующие адреса: Костюшко, д.1 к.2, д. 3 к.2, д.3, д.5,д.7,д.9, д.11, д.13, 1-й Предпортовый проезд, д.14
Костюшко ул: д. 9 корп. 2 лит. А ; Предпортовый 1-й проезд: д. 11 корп. 1, д. 13 корп. 1,, д.13 к.2, д. 15 корп. 1
